

Апартамент в Мараша
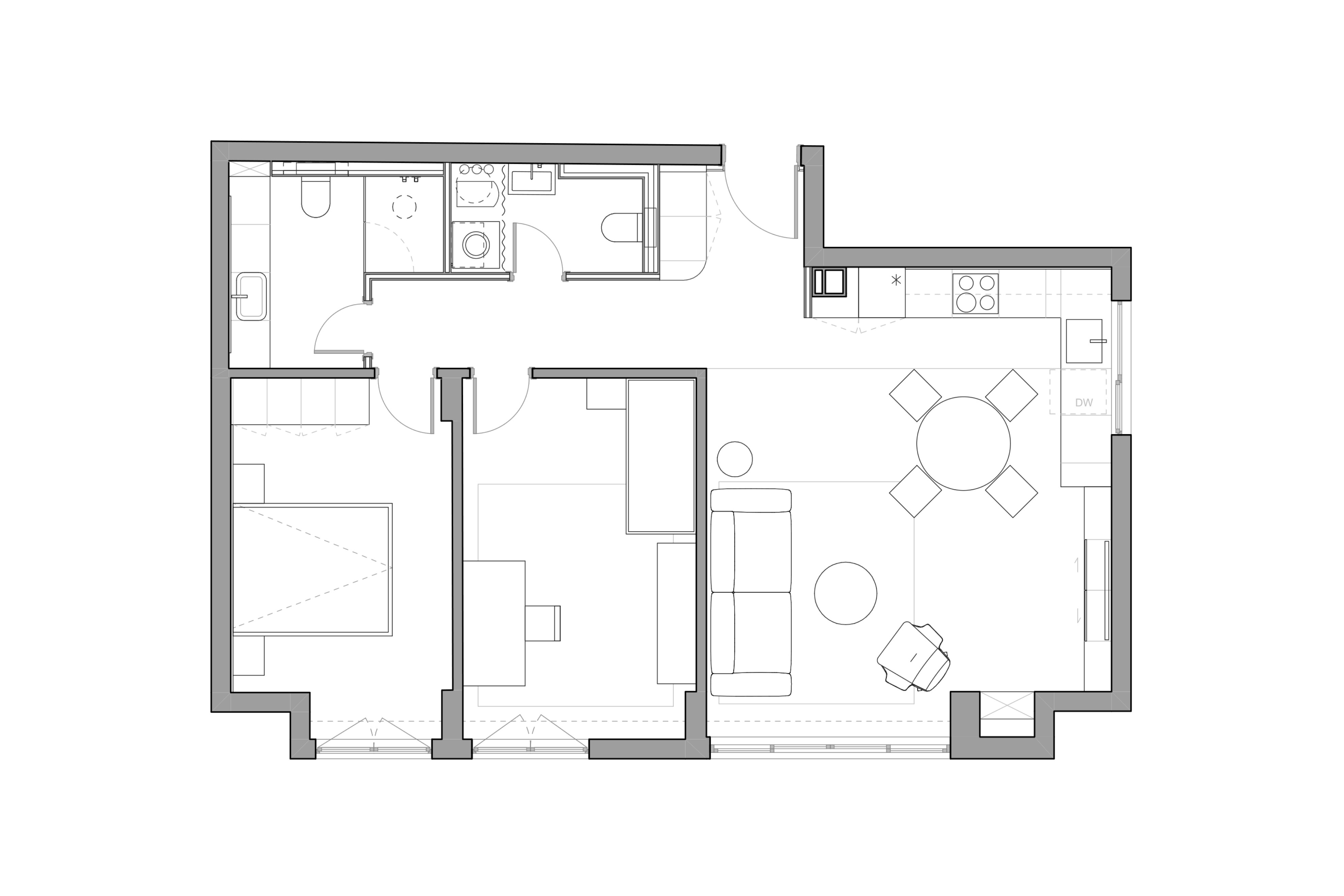
Проектирахме жилище, което да е тихо убежище – място, в което материалите и пропорциите създават усещане за спокойствие. Премахнахме преградни стени и проустроихме санитарните помещения, за да осигурим просторна дневна зона и да намалим комуникационните връзки. Материалите са подбрани с внимание към тяхната автентичност - дърво, камък и текстил съществуват в тих диалог, като всяка повърхност носи собствена текстура и тактилност.
Площ
95 кв.м.
Локация
Пловдив
Етап
Завършен










